2025/12/01
営業
吉田 直樹
『建築王への第一歩👒👊』~戸建フルリノベーション~解体前編
識、構造、笑い・・・この世の建築と笑いのすべてを手に入れようとしている男
ダイケンリフォームサービス団 平社員
モンキー D ナオキー
もう、この名が世に知れわたってきているという噂はまだない。
さあ今回は、戸建フルリノベーション❗️5LDKから4LDK+Sにしてみた だ
じゃいつも通り、ここから吉田にバトンタッチだ
吉田: ...(・∀・)
皆さんこんにちは!吉田です!
さて、今回は枚方市藤阪東町にてフルリノベーション✨ということで
絶賛リフォーム中の現場をダイケンブログ(吉田)にて3~4回に分けて投稿していきます!
戸建のフルリフォームといっても、生活同線、デザイン、使い勝手、悩みだすときりがありません。
吉田に天性のデザイン性があったら悩むこともありませんが、そんなはずもなく。
社内のスタッフからのアイデアを聞き、調べ、ひたすら悩みまくり、考えまくり
その結果、今回の間取りに辿り着きました。
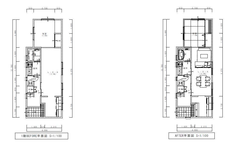
1階ビフォーアフター

1階に水廻りがあり和室とリビングがある築20~30年のよくある戸建です、、、が、しかし
キッチン部分をご覧いただきたい
おわかりいただけただろうか。
そう
キッチンが独立しているではないか
この間取りは料理好きにはたまらない、自分だけの料理スペースが確保できる間取りなのです
今回のリフォームはここが肝だと思いキッチンにこだわってます(和室もこだわったから和室も肝)
そして、回遊同線を改善
以前の間取りでは、洗面室から廊下にでてLDKに入る必要がありました。
そこで洗面室からLDKに入れるようにすることで家に帰ってきて手を洗ってそのままリビングに入れる同線が
できあがりました
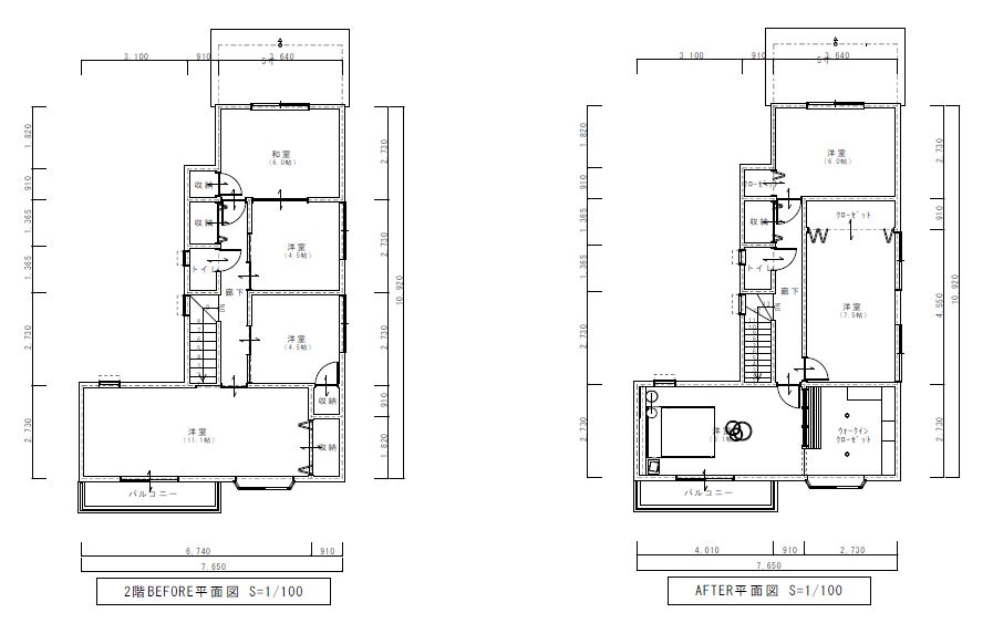
2階ビフォーアフター

2階は1部屋減らし、ウォークインクローゼット兼メイキングルームにしました。
こんな広い洋室とウォークインにしても4LDKが確保できます。
これだけの広さを新築で実現しようと思うと4~5,000万円以上はしてくるのではないでしょうか
リフォームってほんとに素晴らしい✨
さて、そんな内容で絶賛リノベーション中でありますが
完成は来年1月中旬✨お楽しみに
ビフォー

